Vue en plan 3D de l'aménagement d'un atelier d'ébénisterie dans une ancienne grange.
Mission de
conseil pour l’aménagement d’une chambre au sein d'une maison neuve.
Un thème végétal intérieur et deux propositions.
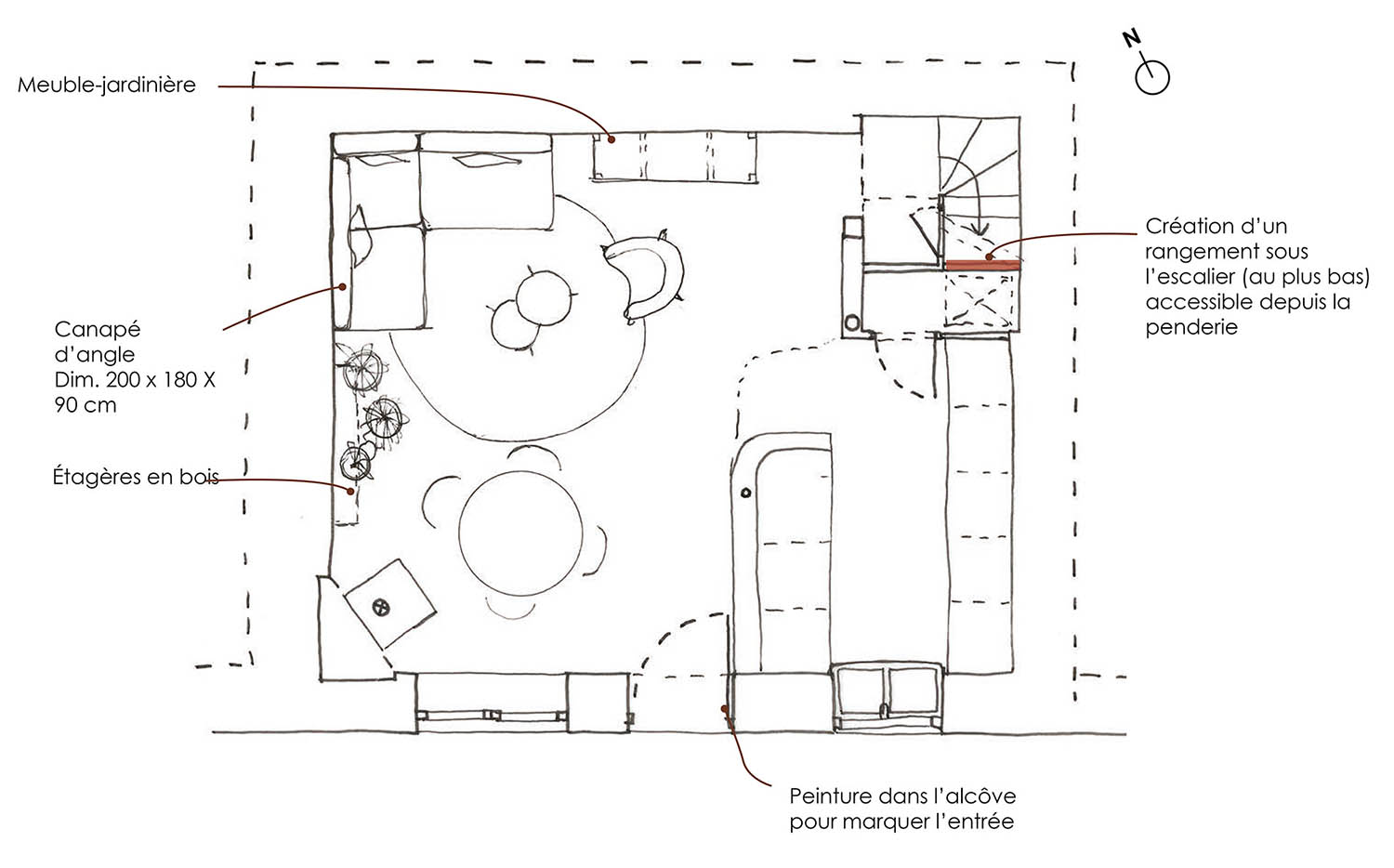
Mission de
conseil pour l’aménagement d’une pièce de vie (salon, salle à manger et cuisine) au sein d’une maison ancienne.
Exemple d’un scénario vue en plan et en croquis à la main.
Mission de
conseil pour le réaménagement d'un salon/salle à manger en conservant au maximum les meubles existants.
Exemple d’un scénario vue en plan et en perspective 3D.
Accompagnement
pour l’aménagement et la recherche d’ambiance de salles de bain enfants et parents pour un projet de construction de maison neuve.
Exemple d'un scénario vue en plan et d'un autre scénario vue en 3D à main levée.
Conseil pour la décoration d’un salon au sein d'un appartement.
Exemple d'un croquis réalisé à main levée et d'une liste shopping.
Mission de conseil pour le réaménagement du rez-de-chaussée d’une maison de vacances en vue d’un aménagement des combles.
Rénovation
d’une chambre double d’hôtel sur le thème « le rouge ».
Projet réalisé dans le cadre de ma formation.
Création d’un hôtel écologique pour le parc du Futuroscope. Projet réalisé dans le cadre de ma formation.